L’Espace et les Objets : La Vie Invisible des Lieux
Avec RGIDA, un espace n’est jamais neutre.
Il influence, provoque, transforme.
Je conçois des lieux qui dépassent la fonction — pour activer une présence, créer un impact, amplifier la vie.


Sobriété dans la douceur




Léa et Marc m’ont confié un cahier des charges détaillé pour leur living, avec pour objectif de créer une ambiance tamisée pour les soirées et un effet sobre pour les journées. Le point focal de la pièce, le fond de téléviseur, a été revêtu de bois massif noir, ajoutant de la profondeur avec ses reliefs. Le meuble en noyer, à la fois aérien et massif, présente un côté monolithique flottant qui apporte une touche naturelle et noble à l’ensemble, créant un contraste saisissant avec le fond. Une étagère décorative dans un style campagnard vient ajouter une touche presque décalée à l’ensemble, tout en équilibrant les extrémités entre la sobriété et la douceur de cette composition intemporelle. L’ensemble du mobilier sur mesure a coûté 7000 euros, permettant ainsi à Léa et Marc de profiter pleinement de leur nouvel espace de vie.
La fraicheur en lumière









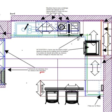
Audrey et François, résidents de Amnéville, souhaitaient une cuisine ouverte avec une atmosphère vil ageoise, mais avec plus de lumière et de fraîcheur. Le cahier des charges était clair : une cuisine fonctionnelle et esthétique. Pour garantir une ergonomie optimale, j’ai choisi de séparer l’évier et la plaque de cuisson, en ajoutant un plan de travail entre les deux. La colonne du four, positionnée stratégiquement sur le retour de la cuisine, permet une aspiration favorable et regroupe les éléments de cuisson. La suppression du mur de séparation entre la cuisine et le salon salle à manger a permis de créer un espace à manger en hauteur, utilisable au quotidien. Un léger décrochement offre une transition fluide entre les deux espaces. Le meuble central, servant de support à l’espace à manger, est positionné face à la porte d’entrée, conférant une présence marquée dès l’entré. Une transformation astucieuse de son côté en coin déco avec des étagères lui confère une polyvalence accrue. Le projet a été réalisé avec succès tout en respectant un budget de 15 000 euros, démontrant une gestion judicieuse des ressources pour créer une cuisine à la fois fonctionnelle, esthétique et personnalisée pour Audrey et François.
En Évolution


Un Univers en Évolution – Chambre de Clara, 2 ans
J'ai conçu cette chambre de 10 m² pour qu'elle grandisse avec Clara, pour qu'elle s'adapte à ses besoins au fil des années. Le cœur du projet ? Un dressing-bureau polyvalent, aujourd'hui à sa hauteur pour dessiner, ranger et jouer, demain capable de s'élever et de se transformer en espace de travail ou de rangement selon ses besoins. Les portes de 2m70 étirent l'espace jusqu'au plafond, créant une sensation d'ouverture et de légèreté, tandis que les matériaux et les couleurs, doux et chaleureux, enveloppent la pièce d'une atmosphère apaisante. Parce qu'une chambre d'enfant n'est pas seulement un espace, mais un territoire en perpétuelle métamorphose — comme l'enfant qui y grandit.





Refuge intemporel












Virginie, 62 ans, et Jean , 65 ans, ont choisi l’Ardèche pour leur retraite et m’ont confié la conception de leur cuisine et de leurs armoires d’entrée. L’intérieur adopte un style industriel, auquel j’ai ajouté une touche chic et naturelle pour créer une atmosphère intemporelle. Les armoires sont placées au fond de la pièce comprenant une porte de passage caché vers le cellier avec un retour linéaire en céramique complète pour l’évier. Un autre retour côté îlot abrite la plaque de cuisson aspirante, avec un généreux plan de travail en céramique pouvant accueillir deux personnes assises. L’exclusivité de cette cuisine réside dans la combinaison unique de matériaux haut de gamme. Une partie des meubles est réalisée en full céramique, comprenant les plans de travail et les façades, avec une épaisseur de céramique renforcée à 6 mm, tandis que le châssis est en aluminium pour renforcer le tout. Cette approche offre non seulement une esthétique exceptionnelle, mais garantit également une durabilité et une fonctionnalité hors pair. Le dos du retour et la crédence de l’évier ont été accentués avec des plaques d’aluminium imprimées hydrofuges pour une touche de chic. Le couloir long de l’entrée, source de désagréments pour Virginie, a été transformé en créant un mur avec des armoires d’entrée assorties à la finition des armoires de cuisine. Le projet a été validé avec succès en respectant un budget de 41 000 euros. Cette fusion harmonieuse du style industriel, du chic naturel et des solutions astucieuses a créé un espace unique et fonctionnel pour Virginie et Jean dans leur nouvelle maison .
Cosy







Dans cette jolie chambre aux teintes grège et naturelles, le dressing prend la forme d’une grande armoire sur mesure. La pièce est réchauffée par le chêne de ce dressing tout en hauteur. Les poignées en laiton antique apportent une once d’originalité et un style chic. Chambre de 15 m2 pour un couple Stéphanie et Luc. Un cahier des charges bien défini : UN MAXIMUM DE RANGEMENT Pour Stéphanie principalement des étagère et une penderie grande hauteur pour les robes. Pour Luc beaucoup de penderie pour chemises, costumes, porte pantalon et peu d’étager. Pour les deux il fallait prévoir des tiroirs pour les sous vêtements mais aussi des tiroirs pour les montres, des ceintures et des cravates. Afin de satisfaire ces besoins nous avons aménager le dressing sur 2 mur. Le dressing principale avec tous les éléments nécessaire de tous les jours et une partie aérienne pour la lingerie de lit et les éléments communes.
2 en 1





Marc, 28 ans, résidant dans un appartement à Thionville a souhaité un projet pour sa cuisine flexible. Avec la pièce de vie ouverte et de taille modeste, la conception devait optimiser l’espace pour intégrer à la fois la cuisine, living et un espace salle à manger. Maxime, originaire de Besançon et travaillant au Luxembourg, ne reçoit pas fréquemment des invités. La solution adoptée est un retour de plans de travail qui sert également de table à manger en extension de la cuisine. Cette approche ergonomique peut accueillir jusqu’à 5 personnes assises tout en libérant davantage d’espace pour le salon. La table salle à manger intégrée est une solution ergonomique, offrant un espace pour les repas tout en restant discrète lorsque non utilisée. La conception prend en compte le style de vie de Marc, favorisant une atmosphère cosy et fonctionnelle pour son appartement. Le projet a été réalisé avec succès en respectant un budget de 12 000 euros. Cette approche pratique et esthétique a permis de créer une cuisine et un espace salle à manger personnalisés, répondant aux besoins de Marc.
Métamorphose














Sophie, 47 ans, et Guillaume , 49 ans, ont entrepris un projet de cuisine conceptuel sur mesure pour leur maison à Nancy, France. Initialement axée sur la modernisation des meubles tout en conservant la disposition existante, la vision de Sophie et Guillaume a évolué après plusieurs entretiens. La contrainte architecturale de l’absence de sous-sol pour le passage des câbles électriques et de l’arrivée d’eau par le sol a limité la possibilité de créer un îlot central. Leur souhait esthétique s’orientait vers un style industriel, mettant en valeur les éléments existants tels que les poutres métalliques et le béton brut, tout en ajoutant une touche chic et contemporaine. Sous l’impulsion d’une de mes propositions la cuisine a subi une métamorphose complète. La solution consistait à repenser complètement l’implantation en valorisant l’espace surélevé de la cuisine. Les murs d’armoires ont été transformés avec des systèmes de portes rentrantes pour intégrer l’évier, le lave-vaisselle et la colonne four. L’îlot central a été réorienté en largeur, longeant tout l’espace surélevé. Des tubes en acier, à la fois décoratifs et fonctionnels, ont été utilisés pour alimenter la plaque de cuisson sur l’îlot central, avec les câbles électriques discrètement acheminés à travers le plafond. Le projet a été validé avec succès dans le cadre d’un budget de 38 000 euros. Cette transformation audacieuse fusionne harmonieusement l’esthétique industrielle chic avec des solutions ingénieuses, créant ainsi une cuisine unique et fonctionnelle pour Sophie et Guillaume. À suivre, le salon et la salle a manger.





Le renouveau
Pour Claire 54 ans, les meubles rustique de salle à manger fessait un contraste fort avec le salon qui était plus moderne. Avec un placard sur mesure du sol au plafond qui prend tout la longueur du mur on équilibre ce décalage esthétique tout en optimisant plus d'espace de rangement en étagère mais aussi de tiroirs. Sans poigné, en push-pull, ce gris souris sera toujours intemporel dans cette intérieur au début de renouveau. Avec la niche horizontal on ajout une touche de noyer comme un rappel sémantique des ancien meubles. Le tout pour un budget de 6200 euros.
Ligne aérienne à l’italien










Luc, 58 ans, et Louise, 52 ans, résidents de Luxembourg, ont fait appel à mes services pour créer une cuisine conceptuelle sur mesure clé en main dans leur appartement. Confronté à des contraintes volumineuses au plafond dues à des éléments techniques, le défi était de créer une esthétique légère, conférant à l’espace une sensation respirante et aérienne, tout en optimisant le rangement et les fonctionnalités. Pour accroître la luminosité la cuisine a été ou verte sur la salle à manger, bénéficiant d’une grande baie vitrée donnant sur le balcon. L’ambiance résultante est chaleureuse et conviviale, avec un espace à manger quotidien accueillant. En matière d’électroménager, des marques de haut de gamme ont été sélectionnées. Une catégorie haut de gamme italienne sans poignée a été choisie pour un aspect épuré et minimaliste. Le projet, réalisé avec succès, a respecté un budget de 35 000 euros. Cette allocation judicieuse des ressources a permis de créer une cuisine, al liant fonctionnalité, esthétique italienne raffinée et un design contemporain chic pour le bonheur de Luc et de Louise.






